Academos, nouvelle cité des sports, de la jeunesse et de la sécurité civile

PRO en cours

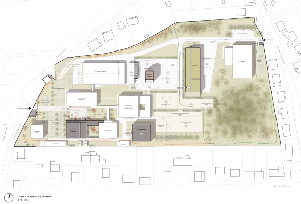
Le Département de Moselle entreprend la restructuration et la transformation profonde d’un site de 4 hectares jusqu’alors occupé par un établissement d’enseignement adapté.

Le projet est une complexe imbrication de bâtiments créés et de bâtiments conservés dont certains ont vocation à héberger des équipes sportives pour les JO 2024. Le site regroupera plusieurs fonctions :
- centre de ressources (direction Jeunesse et Sports du département)
- centre de formations sportives et gymnase
- caserne et centre de formation du SDIS
- auditorium, centre de conférences, hébergements, restaurant

La transformation et la qualification de l’ensemble des espaces extérieurs vise à donner une cohérence globale au projet et à créer un cadre qualitatif pour les différents publics qui partageront ces espaces.